두 건물 사이의 좁은 틈은 어떻게 해야 할까요? 놀라운 건축적 성취로 채워보자!
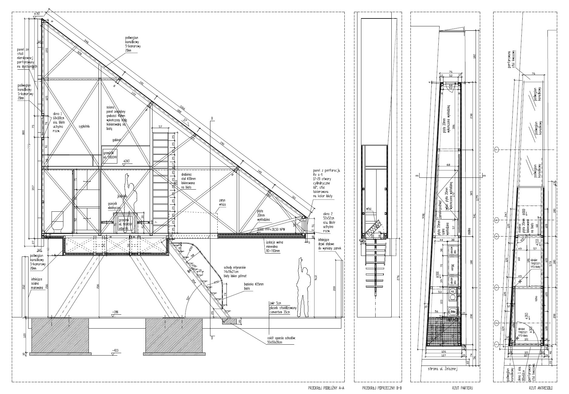
Keret House je projekt poljskega arhitekta Jakuba Szczesnyja iz studia Centrala, ki je zaživel pod okriljem Poljske fundacije za sodobno umetnost. Bolj kot arhitekturni podvig, je izjemna umetniška instalacija umeščena med stavbi zgodovinske vrednosti na ulici Żelazna v Varšavi, s čimer v širino meri največ borih 122 centimetrov. Navkljub utesnjenemu videzu 14 m2 pa notranji ambient, osvetljen z veliko naravne svetlobe, še zdaleč ni klastrofobičen. Z vsemi prostori, potrebnimi za vsakdanje bivanje, tako trenutno nudi začasno potovanje potujočim pisateljem, kot je izraelski Etgar Keret ter hkrati vizijo urbanega domovanja prihodnosti.





