What do we do with a narrow opening between two buildings? Let's fill it with an incredible architectural achievement!
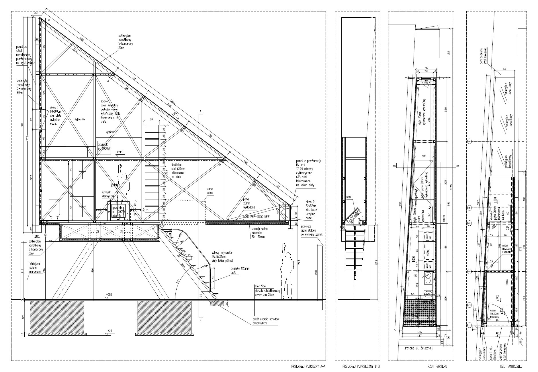
Keret House is a project by Polish architect Jakub Szczesny from Studio Centrala, which came to life under the auspices of the Polish Foundation for Contemporary Art. More than an architectural feat, the extraordinary art installation is located among buildings of historical value on Żelazna Street in Warsaw, making it the largest pine tree in its width. 122 centimeters. Despite the cramped appearance of 14 m2, the interior ambience, illuminated by plenty of natural light, is far from claustrophobic. With all the facilities necessary for daily living, it currently offers temporary travel to itinerant writers such as the Israeli Etgar Keret and at the same time a vision of the urban housing of the future.





