Čo urobíme s úzkym otvorom medzi dvoma budovami? Naplňme to neuveriteľným architektonickým úspechom!
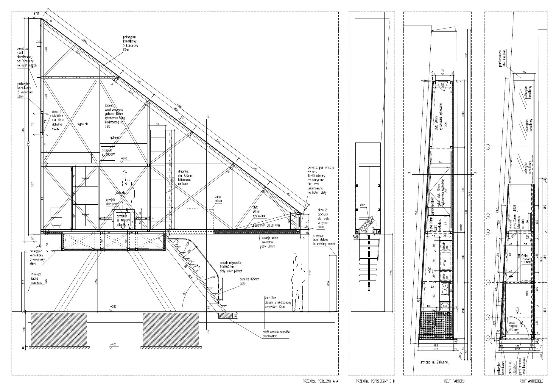
Dom Keret je projekt poľského architekta Jakuba Szczesnyho zo Studia Centrala, ktorý ožil pod záštitou Poľskej nadácie pre súčasné umenie. Viac než len architektonický počin je mimoriadna umelecká inštalácia umiestnená medzi budovami historickej hodnoty na ulici Żelazna vo Varšave, čo z nej robí najväčšiu borovicu vo svojej šírke. 122 centimetre. Napriek stiesnenému vzhľadu 14 m2 má vnútorné prostredie presvetlené dostatkom prirodzeného svetla ďaleko od klaustrofóbie. So všetkými zariadeniami potrebnými na každodenný život v súčasnosti ponúka dočasné cestovanie potulným spisovateľom, ako sú Izraelčania Etgar Keret a zároveň víziou mestského bývania budúcnosti.





