Em tempos onde cada metro de espaço vale uma fortuna, comprar um apartamento menor ou um estúdio pode ser uma solução bastante racional.
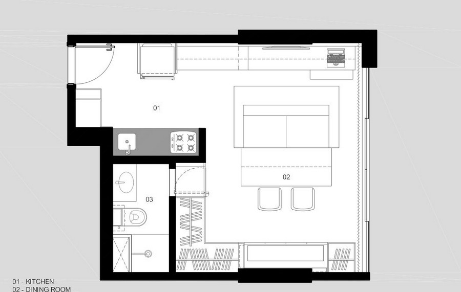
Estamos conscientes disto não só na Eslovénia, onde o mercado imobiliário está morto, mas também noutras partes do mundo. É por isso que lhe apresentamos uma solução inteligente, como torná-la o melhor possível organizar as instalações e elementos individuais. Por exemplo, pegamos apartamento estúdio no Brasil, que se estende até 30 metros quadrados. Um apartamento desenhado pessoalmente, moderno, onde se utilizaram muitos materiais naturais como a madeira. Uma característica especial do apartamento é um banheiro escondido, uma cama dobrável e uma mesa de jantar.





