Aikoihin, jolloin jokainen tilametri on omaisuuksien arvoinen, pienemmän asunnon tai yksiö voi olla erittäin järkevä ratkaisu.
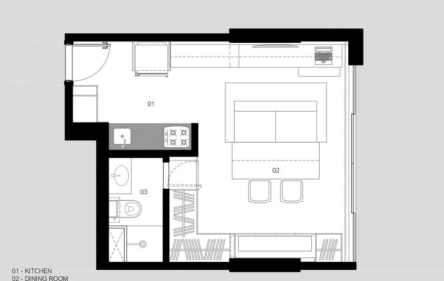
Olemme tietoisia tästä paitsi Sloveniassa, jossa kiinteistömarkkinat ovat kuolleet, myös muualla maailmassa. Siksi esittelemme sinulle älykkään ratkaisun, kuinka tehdä siitä mahdollisimman hyvä järjestää tilat ja yksittäisiä elementtejä. Esimerkiksi otimme yksiö Brasiliassa, joka ulottuu 30 neliömetriä. Henkilökohtaisesti suunniteltu asunto, muodikas, jossa käytettiin paljon luonnonmateriaaleja, kuten puuta. Huoneiston erikoisuutena on myös piilotettu kylpyhuone, kokoontaitettava sänky ja ruokapöytä.





