U vremenima u kojima svaki metar prostora vrijedi pravo bogatstvo, kupnja manjeg stana ili garsonijere može biti vrlo racionalno rješenje.
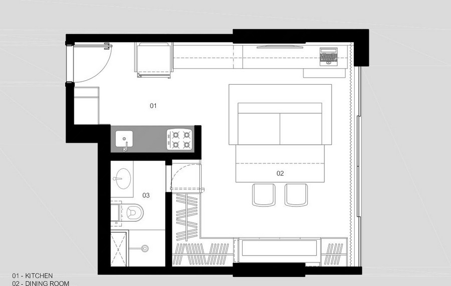
Tega se ne zavedamo samo v Sloveniji, kjer je nepremičninski trg mrtev, temveč tudi drugod po svetu. Zato vam predstavljamo pametno rešitev, kako čim boljše razporediti prostore in posamezne elemente. Za primer smo vzeli garsonjero v Braziliji, ki se razprostira na 30 kvadratnih metrih. Lično oblikovano stanovanje, modno, pri čemer so uporabili veliko naravnega materiala kot je les. Posebnost stanovanja je tudi skrita kopalnica, zložljiva postelja in jedilna miza.





