小公寓的设备肯定是量身定制的,并且出自习惯于创造力和创新的建筑师的创意之笔。在小户型的狭小空间里,只要发挥一点想象力,我们就可以创造出一个现代化的、甚至是极其通风的空间,让我们享受舒适的生活。我们向您展示一些示例,您可以从中汲取装修小公寓的灵感。
过去,我们曾多次写过小户型的“神奇”改造,它们在室内装修中的创意可以为我们指明标准,为我们提供正确的指导方针,并在我们装修自己的公寓时激发我们的灵感。让我们来看看这些小奇迹,它们在室内设计大师和创意建筑师的帮助下被赋予了非凡的新面貌。
公寓面积只有8平米
这套微型公寓位于巴黎一栋古老建筑的七楼,曾经用作仆人的房间,但如今经过翻新,具有迷人的现代气息。巴黎一家建筑事务所为这间仅有八平方米的公寓赋予了新的功能形象 鬼子工作室.
较小的单间公寓,面积只有30平方米
在每一米空间都价值不菲的时代,购买较小的公寓或单间公寓可能是一个非常合理的解决方案。让我们看看如何理想地搬家一个只有30平方米的小单间公寓。
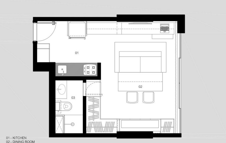
仅40平米的小平装修
曼哈顿一套设计精美的微型公寓绝不会说只有 40 平方米,因为乍一看它似乎比实际面积大得多。
当小店变成生活空间
由于都灵的这间小型简约公寓(前身是一家商店)只有两扇窗户,建筑师将公寓的墙壁漆成白色,从而在视觉上增加了房间的空间和亮度。该空间的特点是白色墙砖和简约的木制家具。由于面积较小,所以空间利用得非常好。
一间空中卧室的英国小房子
这套位于伦敦市中心的公寓最有趣的是空中卧室,位于屋顶露台的半路上。您还注意到餐厅里的浴缸吗?
带轮子的小房子,空间很大
仅20平方米就足以建造一个极具创意和创新的轮子之家,它看起来一点也不像轮子上的房子。安德鲁·莫里森和加布里埃尔·莫里森夫妇提出了一个有趣的概念。
要获得更多灵感,请查看一些面积极小的房间解决方案。





