Zariadenie malého bytu určite musí byť vyrobené na mieru a z kreatívneho pera architekta, ktorý je zvyknutý na kreativitu a inovácie. Na malom priestore, ktorý malé byty ponúkajú, dokážeme s trochou fantázie vytvoriť moderný a dokonca mimoriadne vzdušný priestor, v ktorom sa bude príjemne a pohodlne bývať. Predstavujeme vám niekoľko príkladov, z ktorých môžete čerpať inšpiráciu na zariadenie malého bytu.
V minulosti sme už viackrát písali o „zázračných“ prestavbách malých bytov, ktoré svojou kreativitou pri zariaďovaní interiéru vedia naznačiť štandardy a ukázať nám tie správne mantinely a inšpirovať nás inšpiráciou pri zariaďovaní vlastného bytu. Pozrime sa na tieto malé zázraky, ktoré s pomocou majstrov interiérového dizajnu a kreatívnych architektov dostali mimoriadne nový vzhľad.
Byt má len 8m2
Miniatúrny apartmán, ktorý sa nachádza na siedmom poschodí starej parížskej budovy, slúžil ako izba pre služobníctvo, no dnes je zrekonštruovaný a očarí atraktívnym moderným nádychom. Nový funkčný imidž dala bytu, ktorý meria len osem metrov štvorcových, parížska architektonická kancelária Štúdio Kitoko.
Menšia garsónka s rozlohou iba 30 metrov štvorcových
V časoch, kde každý meter priestoru stojí majland, môže byť kúpa menšieho bytu alebo garsónky veľmi racionálnym riešením. Pozrime sa, ako ideálne presťahovať malú garsónku s rozlohou iba 30 metrov štvorcových.
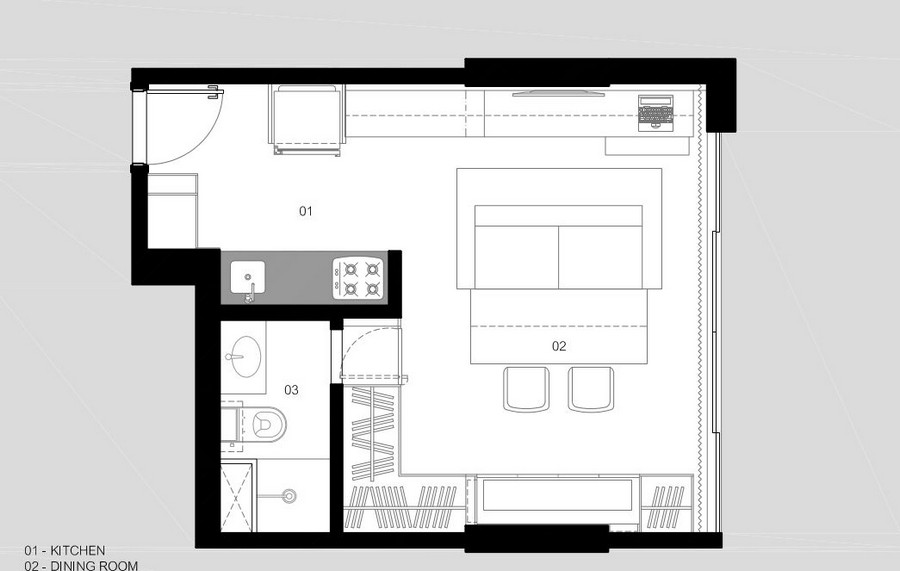
Malá úrovňová rekonštrukcia len 40 metrov štvorcových
O skvele riešenom mikrobyte na Manhattane by sa nikdy nepovedalo, že meria iba 40 metrov štvorcových, pretože na prvý pohľad vyzerá oveľa väčší, než v skutočnosti je.
Keď sa z malého obchodu stane obytný priestor
Keďže malý, minimalistický byt, bývalý obchod, v Turíne má len dve okná, architekti vymaľovali steny bytu na bielo, čím opticky zväčšili priestor a svetlosť v miestnosti. Priestor charakterizujú biele tehlové steny a minimalistický drevený nábytok. Vzhľadom na malú plochu je priestor mimoriadne dobre využitý.
Malý anglický dom so spálňou vo vzduchu
Najzaujímavejšia vec na byte, ktorý sa nachádza v centre Londýna, je spálňa vo vzduchu, ktorá je v polovici cesty na terasu na vrchole strechy. Všimli ste si aj vaňu v jedálni?
Malý domček na kolesách s množstvom priestoru
Len 20 metrov štvorcových stačí na mimoriadne kreatívny a inovatívny domov na kolesách, ktorý v žiadnom prípade nevyzerá ako dom na kolesách. Zaujímavý koncept dizajnérskej dvojice Andrew & Gabrielle Morrison.
Ak chcete získať ešte viac inšpirácie, pozrite sa na niektoré riešenia izieb na extrémne malých rozmeroch.





