작은 아파트의 가구는 반드시 맞춤 제작되어야 하며, 창의성과 혁신에 익숙한 건축가가 설계해야 합니다. 작은 아파트가 제공하는 작은 공간에서도 약간의 상상력만 있다면, 편안하게 즐기고 생활할 수 있는 현대적이고 매우 통풍이 잘 되는 공간을 만들어낼 수 있습니다. 우리는 여러분께 작은 아파트를 꾸미는 데 영감을 얻을 수 있는 몇 가지 사례를 소개합니다.
V preteklosti smo že večkrat pisali o “čudežnih” predelavah malih stanovanj, ki s svojo kreativnostjo pri notranjem opremljanju lahko nakazujejo standarde in nam pokažejo prave smernice in nas navdihujejo z inspiracijo pri opremljanju lastnega stanovanja. Preverimo te male čudeže, ki so s pomočjo mojstrov notranje opreme in kreativnih arhitekov dobili izjemno novo podobo.
Stanovanje veliko le 8 kvadratnih metrov
Miniaturno stanovanjce, ki ga najdemo v sedmem nadstropju stare pariške zgradbe, je včasih služilo kot soba za služinčad, danes pa prenovljeno očara s privlačnim sodobnim pridihom. Novo funkcionalno podobo so stanovanjcu, ki meri zgolj osem kvadratnih metrov, podarili pri pariškem arhitekturnem biroju Kitoko Studio.
Manjša garsonjera, velika le 30 kvadratnih metrov
V časih, kjer je vsak meter prostora vreden celo bogastvo, je lahko nakup manjšega stanovanja, oziroma garsonjere, zelo racionalna rešitev. Poglejmo kako idealno premimo manjšo garsonjero, veliko le 30 kvadratnih metrov.
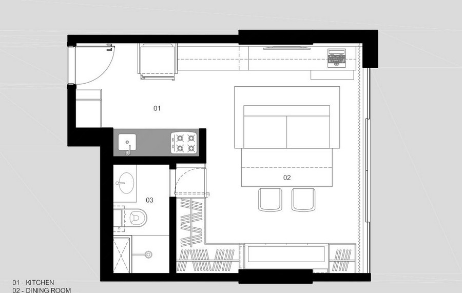
Manjše nivojsko sanovanje na le 40 kvadratnih metrih
맨해튼에 있는 훌륭하게 디자인된 초소형 아파트는 결코 40제곱미터에 불과하다고는 할 수 없습니다. 언뜻 보면 실제보다 훨씬 더 커 보이기 때문입니다.
Ko mala trgovina postane bivalni prostor
Ker ima majhno, minimalistično stanovanje, bivša trgovina, v Torinu le dvoje oken, so arhitekti stene stanovanja odeli v belo barvo in s tem optično povečali prostor ter svetlost v prostoru. Prostor zaznamujejo belo obarvane zidne opeke in minimalistično leseno pohištvo. Zaradi majhne površine je prostor izjemno izkoriščen.
Mali angleški dom s spalnico v zraku
런던 중심부에 위치한 이 아파트에서 가장 흥미로운 점은 옥상 테라스의 중간쯤에 있는 공중에 떠 있는 침실입니다. 식당에 욕조도 보셨나요?
Mala hiša na kolesih, v kateri je ogromno prostora
Le 20 kvadratnih metrov zadostuje za izjemno kreativen in inovativen dom na kolesih, ki v sami notranjosti nikakor ne izpade kot hiša na kolesih. Zanimiv koncept oblikovalskega para Andrewa & Gabrielle Morrison.
Za še več inspiracije si oglejte nekaj rešitev prostorov, na izjemno majhnih kvadraturah.





