L'ameublement d'un petit appartement doit absolument être réalisé sur mesure et conçu par un architecte habitué à la créativité et à l'innovation. Dans le petit espace offert par les petits appartements, avec un peu d'imagination, nous pouvons créer un espace moderne et même extrêmement aéré dans lequel profiter et vivre confortablement. Nous vous présentons quelques exemples dont vous pourrez vous inspirer pour aménager un petit appartement.
Nous avons déjà évoqué à maintes reprises des transformations « miraculeuses » de petits appartements, dont la créativité en matière de décoration intérieure a su établir des normes, nous guider et nous inspirer pour l'aménagement de notre propre appartement. Découvrons ces petits miracles, transformés par des maîtres de la décoration d'intérieur et des architectes créatifs.
Un appartement de seulement 8 mètres carrés
Situé au septième étage d'un ancien immeuble parisien, l'appartement miniature servait autrefois de chambre de domestique, mais aujourd'hui il a été rénové et charme avec une jolie touche moderne. Une nouvelle image fonctionnelle a été donnée à l'appartement, qui ne mesure que huit mètres carrés, par un bureau d'architecture parisien Studio Kitoko.
Petit studio, seulement 30 mètres carrés
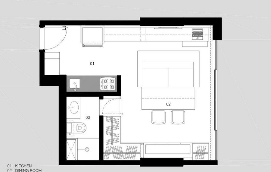
À une époque où chaque mètre carré vaut une fortune, acheter un petit appartement, ou un studio, peut s'avérer une solution très rationnelle. Voyons comment meubler idéalement un petit studio de seulement 30 mètres carrés.
Rénovation mineure sur seulement 40 mètres carrés
On ne pourrait jamais dire qu’un micro-appartement superbement conçu à Manhattan mesure seulement 40 mètres carrés, car à première vue, il semble beaucoup plus grand qu’il ne l’est en réalité.
Quand une petite boutique devient un espace de vie
Comme ce petit appartement minimaliste, autrefois une boutique à Turin, ne possède que deux fenêtres, les architectes ont peint les murs en blanc, augmentant ainsi visuellement l'espace et la luminosité de la pièce. L'espace est caractérisé par des murs en briques peintes en blanc et un mobilier en bois minimaliste. Grâce à sa petite surface, l'espace est optimisé.
Petite maison anglaise avec une chambre en l'air
L'atout le plus intéressant de cet appartement, situé en plein cœur de Londres, est sa chambre spacieuse, située à mi-hauteur du toit-terrasse. Avez-vous également remarqué la baignoire dans la salle à manger ?
Une petite maison sur roues avec beaucoup d'espace
Seulement 20 mètres carrés suffisent pour une maison sur roues extrêmement créative et innovante, dont l'intérieur ne ressemble en rien à une maison sur roues. Un concept intéressant imaginé par le couple de designers Andrew et Gabrielle Morrison.
Pour encore plus d’inspiration, découvrez quelques solutions d’espace pour les espaces extrêmement petits.





