カナダは文化と手つかずの自然が独特に融合しているだけでなく、その建築物も素晴らしいのです。ニューファンドランド州フォーゴ島の海岸にあるタワー スタジオもその 1 つで、サンダース アーキテクチャーと契約した幾何学的形状の安息の地です。
50 kvadratnih metrov veliko 避難 Tower Studio ima izvenzemeljsko arhitekturo, ki naravnost osupne. Leži na otoku Fogo, ki velja za eno prvih naseljenih območij v Kanadi in prav nič ne caplja zadaj v fascinantnosti. Saunders Architecture je na njegovo skalnato obalo postavil črno silhueto nenavadne geometrične oblike z le enim oknom, ki je istočasno okno in strešno okno. Naštejemo ji tri nadstropja in ni dostopna z avtomobilom. Do tja se iz glavne ceste kot jara kača vije lesena pot, ki se dviga nad močvirjem, s čimer ščiti ekosistem lišajev.
続きを読む: スカイプール - ロンドンに水泳選手の架け橋となる世界で最も魅力的なプールが誕生します

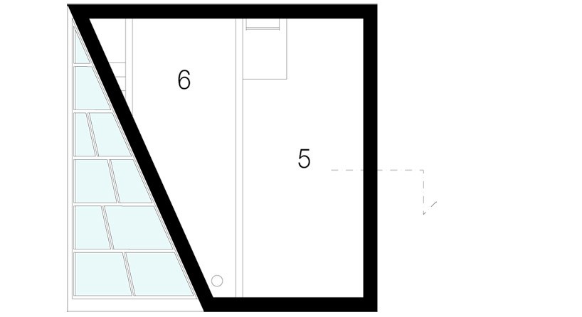
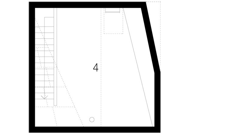
Nad vhodnimi vrati, ki so poleg trikotnega okna edina ”odprtina”, se nahaja trikotna faseta, ki služi kot nadstrešek. V pritličju Tower Studio začasnim gostom nudi majhno kuhinjo in stranišče, prvo nadstropje služi kot アトリエ, tretje pa kot balkon. In če v prvo nadstropje še vodijo 階段, je treba na vrh prilesti s pomočjo lestve.
詳しくは:
architizer.com






