Canadá no sólo es impresionante por su combinación única de cultura y naturaleza virgen, sino que también es impresionante por su arquitectura. Uno de ellos es el Tower Studio en la costa de la isla de Fogo, en la provincia de Terranova, un paraíso de formas geométricas bajo el cual ha firmado el estudio Saunders Architecture.
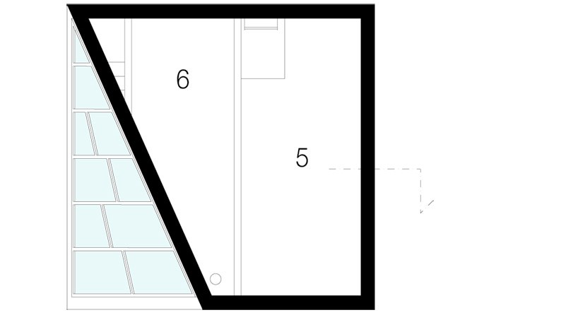
50 kvadratnih metrov veliko pribežališče Tower Studio ima izvenzemeljsko arhitekturo, ki naravnost osupne. Leži na otoku Fogo, ki velja za eno prvih naseljenih območij v Kanadi in prav nič ne caplja zadaj v fascinantnosti. Saunders Architecture je na njegovo skalnato obalo postavil črno silhueto nenavadne geometrične oblike z le enim oknom, ki je istočasno okno in strešno okno. Naštejemo ji tri nadstropja in ni dostopna z avtomobilom. Do tja se iz glavne ceste kot jara kača vije lesena pot, ki se dviga nad močvirjem, s čimer ščiti ekosistem lišajev.
LEE MAS: Sky Pool - Londres tendrá la piscina más atractiva del mundo, que será un puente para los nadadores

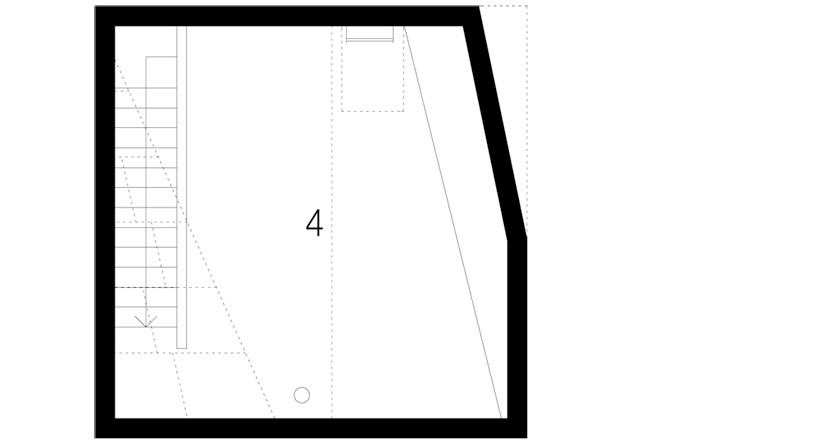
Nad vhodnimi vrati, ki so poleg trikotnega okna edina ”odprtina”, se nahaja trikotna faseta, ki služi kot nadstrešek. V pritličju Tower Studio začasnim gostom nudi cocina pequeña in stranišče, prvo nadstropje služi kot taller, tretje pa kot balkon. In če v prvo nadstropje še vodijo escaleras, je treba na vrh prilesti s pomočjo lestve.
Más información:
architizer.com






