캐나다는 문화와 때묻지 않은 자연이 독특하게 조화를 이루는 곳일 뿐만 아니라 건축 양식도 아름답습니다. 그 중 하나는 Saunders Architecture가 서명한 기하학적 모양의 안식처인 뉴펀들랜드 지방의 포고 섬 해안에 있는 타워 스튜디오입니다.
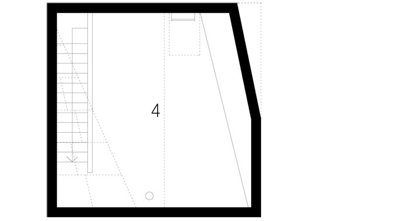
50 kvadratnih metrov veliko 피난 Tower Studio ima izvenzemeljsko arhitekturo, ki naravnost osupne. Leži na otoku Fogo, ki velja za eno prvih naseljenih območij v Kanadi in prav nič ne caplja zadaj v fascinantnosti. Saunders Architecture je na njegovo skalnato obalo postavil črno silhueto nenavadne geometrične oblike z le enim oknom, ki je istočasno okno in strešno okno. Naštejemo ji tri nadstropja in ni dostopna z avtomobilom. Do tja se iz glavne ceste kot jara kača vije lesena pot, ki se dviga nad močvirjem, s čimer ščiti ekosistem lišajev.
더 읽어보기: 스카이 풀(Sky Pool) - 런던은 수영선수들을 위한 다리가 될 세계에서 가장 매력적인 수영장을 갖게 될 것입니다.

Nad vhodnimi vrati, ki so poleg trikotnega okna edina ”odprtina”, se nahaja trikotna faseta, ki služi kot nadstrešek. V pritličju Tower Studio začasnim gostom nudi 작은 부엌 in stranišče, prvo nadstropje služi kot 아틀리에, tretje pa kot balkon. In če v prvo nadstropje še vodijo 계단, je treba na vrh prilesti s pomočjo lestve.
추가 정보:
architizer.com






