Kanada ne osupne samo s svojo edinstveno mešanico kulture in neokrnjeno naravo, Kanada osupne tudi s svojo arhitekturo. Ena takih je Tower Studio na obali otoka Fogo v provinci Newfoundland, pribežališče geometričnih oblik pod katero se je podpisal atelje Saunders Architecture.
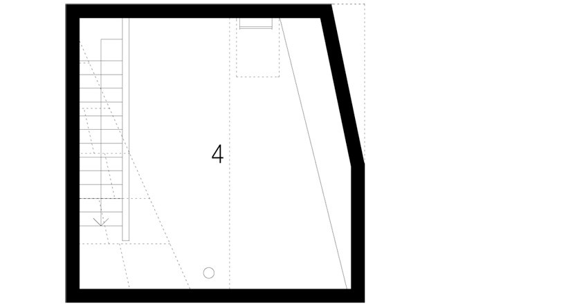
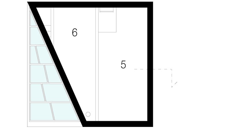
50 kvadratnih metrov veliko pribežališče Tower Studio ima izvenzemeljsko arhitekturo, ki naravnost osupne. Leži na otoku Fogo, ki velja za eno prvih naseljenih območij v Kanadi in prav nič ne caplja zadaj v fascinantnosti. Saunders Architecture je na njegovo skalnato obalo postavil črno silhueto nenavadne geometrične oblike z le enim oknom, ki je istočasno okno in strešno okno. Naštejemo ji tri nadstropja in ni dostopna z avtomobilom. Do tja se iz glavne ceste kot jara kača vije lesena pot, ki se dviga nad močvirjem, s čimer ščiti ekosistem lišajev.
PER SAPERNE DI PIÙ: Sky Pool - Londra avrà la piscina più bella del mondo, che sarà un ponte per i nuotatori

Nad vhodnimi vrati, ki so poleg trikotnega okna edina ”odprtina”, se nahaja trikotna faseta, ki služi kot nadstrešek. V pritličju Tower Studio začasnim gostom nudi piccola cucina in stranišče, prvo nadstropje služi kot atelier, tretje pa kot balkon. In če v prvo nadstropje še vodijo scale, je treba na vrh prilesti s pomočjo lestve.
Maggiori informazioni:
architizer.com






