Kanada verblüfft nicht nur mit seiner einzigartigen Mischung aus Kultur und unberührter Natur, Kanada verblüfft auch mit seiner Architektur. Eines davon ist das Tower Studio an der Küste der Insel Fogo in der Provinz Neufundland, eine Oase geometrischer Formen, die von Saunders Architecture signiert wurde.
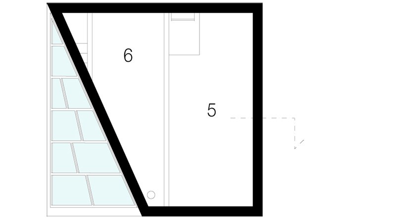
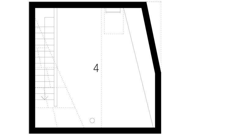
50 Quadratmeter groß Zuflucht Turmstudio Es hat eine jenseitige Architektur, die absolut atemberaubend ist. Hinlegen auf der Insel Fogo, das als eines der ersten bewohnten Gebiete Kanadas gilt und an Faszination nicht zurückbleibt. Saunders-Architektur platzierte eine schwarze Silhouette an seinem felsigen Ufer ungewöhnliche geometrische Formen mit nur einem Fenster, das zugleich Fenster und Oberlicht ist. Zählen wir ihre drei Etagen und ist nicht mit dem Auto erreichbar. Es schlängelt sich von der Hauptstraße dorthin Holzweg, der sich über den Sumpf erhebt und ihn so schützt Flechten Ökosystem.
WEITERLESEN: Sky Pool - London erhält den attraktivsten Pool der Welt, der eine Brücke für Schwimmer sein wird

Über der Eingangstür, die daneben ist dreieckiges Fenster die einzige "Öffnung" befindet dreieckige Facette, die als Überdachung dient. Im Erdgeschoss bietet das Tower Studio temporäre Gäste kleine Küche und Toilette dient der erste Stock als Atelier, und das dritte als Balkon. Und ob sie noch in den ersten Stock führen Treppe, ist es notwendig, nach oben zu klettern mit einer Leiter.
Mehr Informationen:
architizer.com






