Canada is niet alleen prachtig met zijn unieke mix van cultuur en ongerepte natuur, Canada is ook prachtig met zijn architectuur. Eén daarvan is de Tower Studio aan de kust van Fogo Island in de provincie Newfoundland, een oase van geometrische vormen waaronder de studio Saunders Architecture heeft getekend.
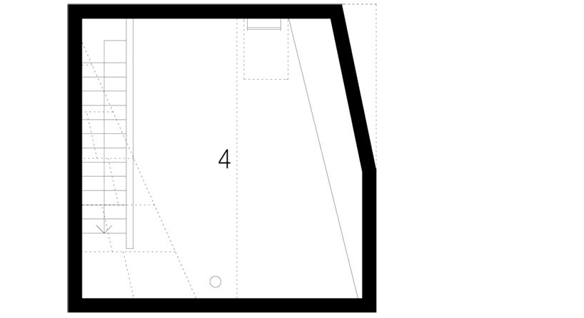
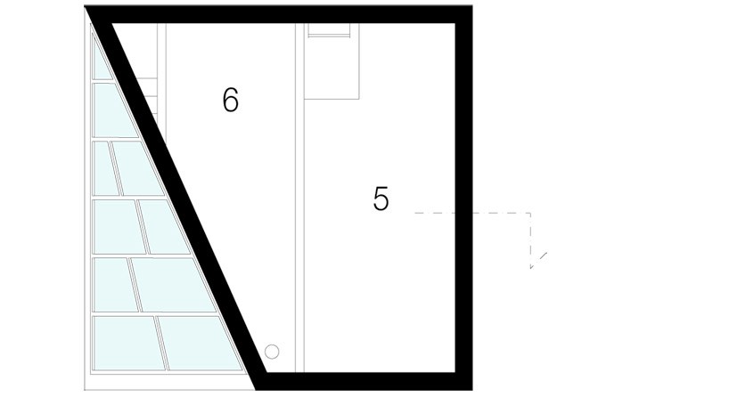
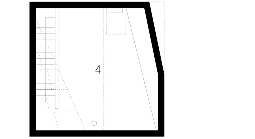
50 kvadratnih metrov veliko pribežališče Tower Studio ima izvenzemeljsko arhitekturo, ki naravnost osupne. Leži na otoku Fogo, ki velja za eno prvih naseljenih območij v Kanadi in prav nič ne caplja zadaj v fascinantnosti. Saunders Architecture je na njegovo skalnato obalo postavil črno silhueto nenavadne geometrične oblike z le enim oknom, ki je istočasno okno in strešno okno. Naštejemo ji tri nadstropja in ni dostopna z avtomobilom. Do tja se iz glavne ceste kot jara kača vije lesena pot, ki se dviga nad močvirjem, s čimer ščiti ekosistem lišajev.
LEES VERDER: Sky Pool - Londen krijgt het aantrekkelijkste zwembad ter wereld, dat een brug voor zwemmers zal zijn

Nad vhodnimi vrati, ki so poleg trikotnega okna edina ”odprtina”, se nahaja trikotna faseta, ki služi kot nadstrešek. V pritličju Tower Studio začasnim gostom nudi majhno kuhinjo in stranišče, prvo nadstropje služi kot atelier, tretje pa kot balkon. In če v prvo nadstropje še vodijo trap, je treba na vrh prilesti s pomočjo lestve.
Meer informatie:
architizer.com






