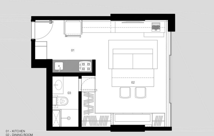
In tijden waarin elke meter ruimte een fortuin waard is, kan het kopen van een kleiner appartement of studio-appartement een zeer rationele oplossing zijn.
We zijn ons hiervan bewust, niet alleen in Slovenië, waar de vastgoedmarkt dood is, maar ook elders in de wereld. Daarom presenteren we u een slimme oplossing om uw vastgoed zo goed mogelijk te beheren. de kamers inrichten en individuele elementen. Zo namen we bijvoorbeeld studio-appartement in Brazilië, dat zich uitstrekt over 30 vierkante meterEen prachtig ontworpen appartement, trendy, met veel natuurlijke materialen zoals hout. Het appartement beschikt ook over een verborgen badkamer, een opklapbed en een eettafel.





