加拿大不仅以其独特的文化和未受破坏的自然融合而令人惊叹,而且其建筑也令人惊叹。其中之一就是位于纽芬兰省福戈岛海岸的塔楼工作室,这是一个几何形状的天堂,桑德斯建筑工作室已在其下签约。
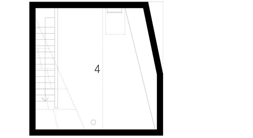
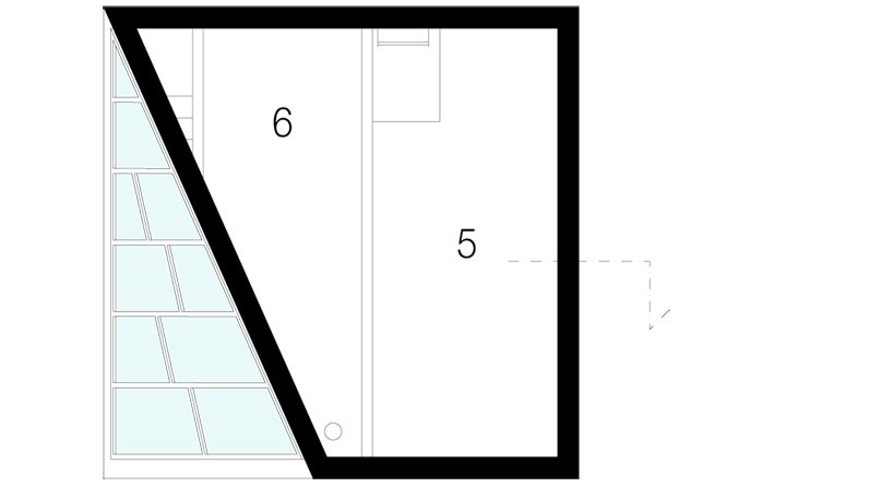
50 kvadratnih metrov veliko pribežališče Tower Studio ima izvenzemeljsko arhitekturo, ki naravnost osupne. Leži na otoku Fogo, ki velja za eno prvih naseljenih območij v Kanadi in prav nič ne caplja zadaj v fascinantnosti. Saunders Architecture je na njegovo skalnato obalo postavil črno silhueto nenavadne geometrične oblike z le enim oknom, ki je istočasno okno in strešno okno. Naštejemo ji tri nadstropja in ni dostopna z avtomobilom. Do tja se iz glavne ceste kot jara kača vije lesena pot, ki se dviga nad močvirjem, s čimer ščiti ekosistem lišajev.
阅读更多: 天空泳池——伦敦将拥有世界上最具吸引力的泳池,它将成为游泳者的桥梁

Nad vhodnimi vrati, ki so poleg trikotnega okna edina ”odprtina”, se nahaja trikotna faseta, ki služi kot nadstrešek. V pritličju Tower Studio začasnim gostom nudi majhno kuhinjo in stranišče, prvo nadstropje služi kot 工作室, tretje pa kot balkon. In če v prvo nadstropje še vodijo 楼梯, je treba na vrh prilesti s pomočjo lestve.
更多信息:
architizer.com






