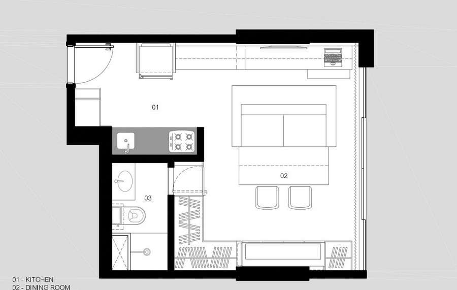
V časih, kjer je vsak meter prostora vreden celo bogastvo, je lahko nakup manjšega stanovanja, oziroma garsonjere, zelo racionalna rešitev.
Tega se ne zavedamo samo v Sloveniji, kjer je nepremičninski trg mrtev, temveč tudi drugod po svetu. Zato vam predstavljamo pametno rešitev, kako čim boljše razporediti prostore in posamezne elemente. Za primer smo vzeli garsonjero v Braziliji, ki se razprostira na 30 kvadratnih metrih. Lično oblikovano stanovanje, modno, pri čemer so uporabili veliko naravnega materiala kot je les. Posebnost stanovanja je tudi skrita kopalnica, zložljiva postelja in jedilna miza.





