Kompaktowy dom jednorodzinny w miejscowości Škofja Loka wywołał poruszenie w internecie, został zaprezentowany na wielu światowych portalach architektonicznych, takich jak freshhome i archdaily.
Nowo wybudowany dom jednorodzinny w Škofja Loce, o powierzchni zaledwie 33 metrów kwadratowych, odniósł ogromny sukces w internecie; jego projekt został opublikowany na dwóch globalnych portalach architektonicznych: freshhome i archdaily. Według architektów z 3Biuro Klienci przyszli do nich ze standardowym projektem domu i chcieli tylko wymienić okna, ale architekci urzekli ich wizją budynku dostosowanego do potrzeb młodej rodziny.

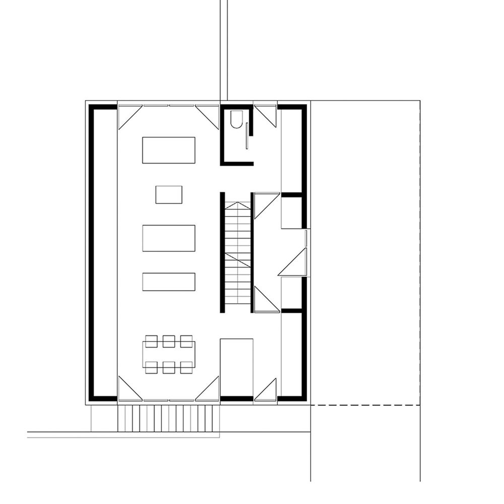
Największymi ograniczeniami w projekcie budynku były pochyły teren i gęsta zabudowa. Architekci chcieli pozostawić jak największą część działki pustą. Dzięki dwóm wspornikowym bryłom udało im się zminimalizować plan piętra do zaledwie 33 metrów kwadratowych, mimo że budynek ma 180 metrów kwadratowych powierzchni użytkowej. Budynek zdaje się jedynie lekko stykać z terenem, a wsporniki tworzą dwie zadaszone przestrzenie zewnętrzne – jedną na poziomie piwnicy, która otwiera się na naturę, oraz drugą na poziomie ulicy, która pełni funkcję zadaszenia nad parkingiem i wejściem.
CZYTAJ WIĘCEJ: Słowackie billboardy, które staną się azylem dla bezdomnych

Prywatność przestrzeni budynku zwiększa się wraz z piętrami; w piwnicy mieści się gabinet ojca i pokój zabaw dla dzieci, parter przeznaczony jest na pomieszczenia mieszkalne, a pierwsze piętro na sypialnie. Konstrukcja budynku łączy żelbet i drewno. Decyzja o zastosowaniu drewnianej konstrukcji była motywowana szybkością i łatwością budowy, a także dążeniem do zrównoważonego budownictwa. Jak wiadomo, Słowenia jest krajem bogatym w drewno, a jednocześnie mieszkanie w drewnianym budynku jest niezwykle przyjemne. Elewacje północna i południowa obłożone są drewnianymi szalunkami i otwierają się na piękny krajobraz dużymi oknami. Natomiast elewacje wschodnia i zachodnia, ze względu na bliskość sąsiednich budynków, są maksymalnie zamknięte i pokryte falistymi płytami cementowymi, które pokrywają również dach.
Tutaj możesz śledzić ogłoszenie w mediach zagranicznych: archdaily.com, Freshome.com






