Et kompakt enebolig i Škofja Loka har skapt mye blest på nettet, ettersom det ble vist på mange globale arkitekturportaler, som freshhome og archdaily.
Et nybygd enebolig i Škofja Loka, som har et gulvareal på bare 33 kvadratmeter, har vært en stor suksess på Internett; den ble publisert på to globale arkitekturportaler, freshhome og archdaily. Ifølge arkitektene fra 3 Kontor Kundene kom til dem med en standard husplan og ville bare bytte ut vinduene, men arkitektene fengslet dem med sin visjon om en bygning skreddersydd for behovene til en ung familie.

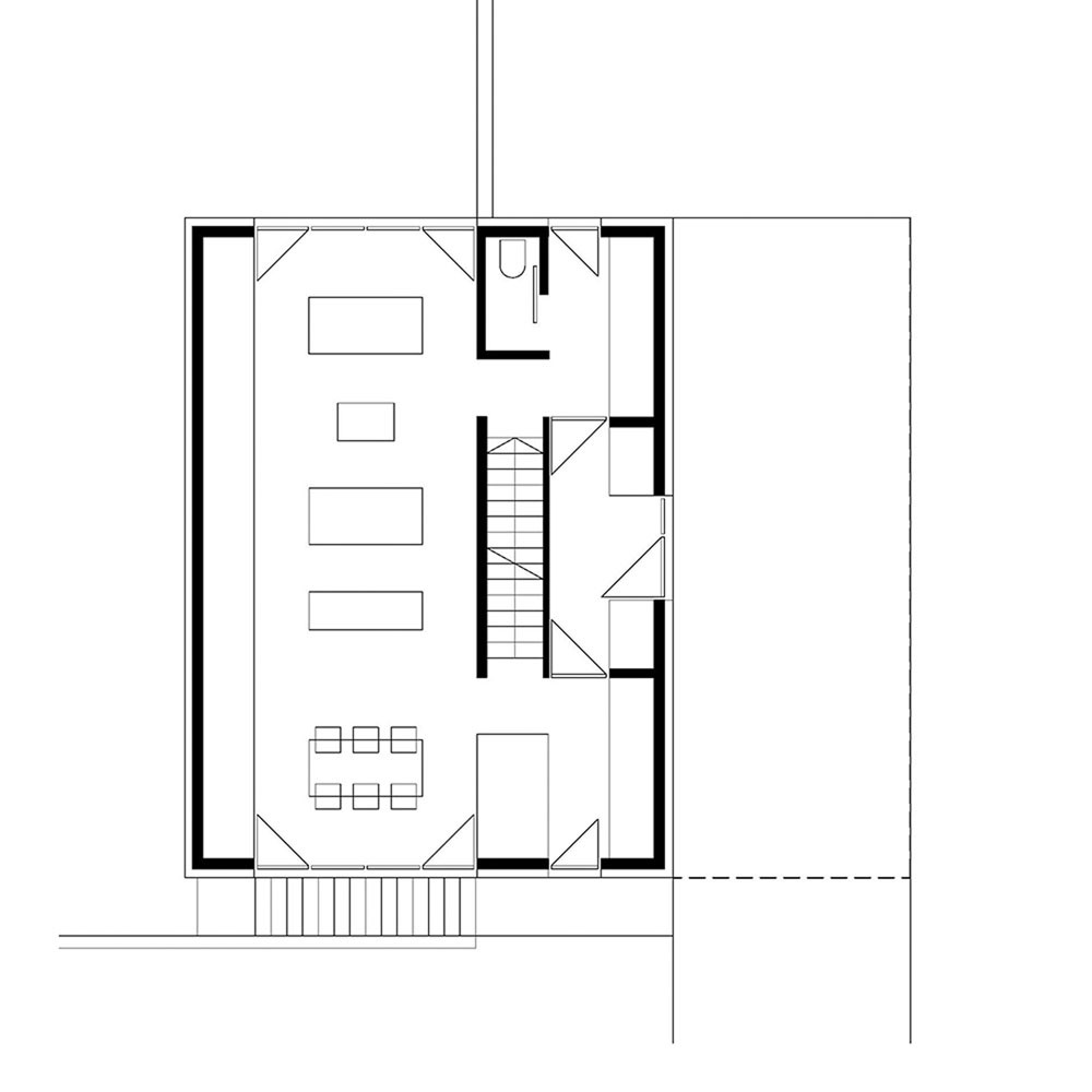
De største begrensningene ved utformingen av bygget var det skrånende terrenget og den tette omkringliggende bebyggelsen. Arkitektene ønsket å la mest mulig av tomten stå tom. Ved hjelp av to utkragede volumer klarte de å minimere byggets planløsning til kun 33 kvadratmeter, selv om bygget ellers har 180 kvadratmeter boareal. Bygningen ser ut til å bare berøre terrenget lett, og utkragingene skaper to overbygde utearealer – ett i kjellerplan som åpner ut mot naturen og ett på gateplan som fungerer som baldakin over parkeringsplass og inngang.
LES MER: Slovakiske reklametavler som vil bli et tilfluktssted for hjemløse

Privatlivet til bygningens rom øker med etasjene; Kjelleren rommer farskontoret og barnas lekerom, første etasje er beregnet for oppholdsrom, og øverste etasje er for soverom. Byggemessig er bygget utformet i en kombinasjon av armert betong og tre. Beslutningen om å implementere en trekonstruksjon ble ikke bare drevet av hastigheten og enkel konstruksjon, men også av ønsket om bærekraftig konstruksjon. Som vi vet er Slovenia ekstremt rikt på tre, og samtidig er det ekstremt hyggelig å bo i en trebygning. Nord- og sørfasadene er kledd med trepanel og åpner ut mot det vakre landskapet med store vinduer. I motsetning til dette er øst- og vestfasadene, på grunn av nærheten til nabobygninger, stengt mest mulig og dekket med korrugerte sementplater, som også dekker taket.
Du kan følge oppslaget i utenlandske medier her: archdaily.com, freshome.com






