The compact single-family house in Škofja Loka raised a lot of dust on the Internet, as it was published on many global architectural portals, such as freshhome and archdaily.
The newly built single-family house in Škofja Loka, which boasts a floor area of only 33 square meters, has experienced great success on the Internet; it was published on two global architectural portals, freshhome and archdaily. According to the architects from 3 Offices the clients came to them with a typical house plan and only wanted to move the windows, and the architects then charmed them with their vision of a building adapted to the needs of a young family.

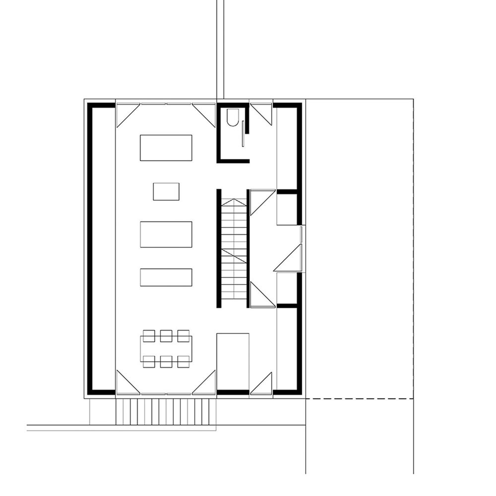
The biggest limitations in designing the building were the sloping terrain and the dense surrounding buildings. The architects wanted to leave as much of the building plot as possible empty. With the help of two cantilever volumes, they managed to minimize the floor plan of the building to only 33 square meters, otherwise the building has 180 square meters of living space. The building acts as if it is only lightly touching the terrain, and the two cantilevers create a covered outdoor area – one at the basement level, which opens up to nature, and one at the street level, which serves as a canopy over the parking lot and the entrance.
READ MORE: Slovak billboards that will become a refuge for the homeless

The privacy of the building's premises increases with the floors; the father's office and children's playroom are located in the basement, the ground floor is intended for living spaces, and the first floor is for bedrooms. Structurally, the building is designed in a combination of reinforced concrete and wood. In addition to the speed and ease of construction, the decision to implement a wooden structure was also supported by the desire for sustainable construction. As we know, Slovenia is extremely rich in wood, and at the same time staying in a wooden building is extremely pleasant. The northern and southern facades are clad in wooden paneling and open to the beautiful landscape with large windows. On the other hand, due to the proximity of the neighboring buildings, the eastern and western facades are closed as much as possible and covered with corrugated cement sheets, with which the roof is also covered.
The announcement to foreign media can be found here: archdaily.com, freshome.com






