Kompaktna obiteljska kuća u Škofjoj Loki podigla je veliku prašinu na internetu jer su je objavili brojni svjetski arhitektonski portali poput freshhomea i archdailyja.
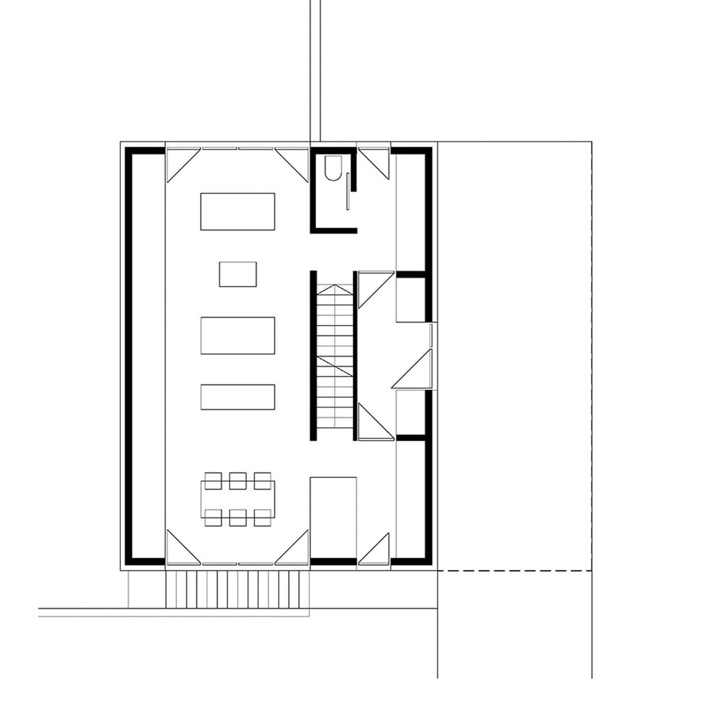
Novoizgrađena obiteljska kuća u Škofjoj Loki, površine svega 33 četvorna metra, doživjela je veliki uspjeh na internetu; objavljena je na dva globalna arhitektonska portala, freshhome i archdaily. Prema riječima arhitekata iz 3 Ureda naručitelji su im dolazili s tipskim planom kuće i htjeli samo pomaknuti prozore, a arhitekti su ih potom očarali svojom vizijom zgrade prilagođene potrebama mlade obitelji.

Najveće ograničenje pri projektiranju zgrade bili su nagnuti teren i gusta okolna izgrađenost. Arhitekti su željeli što veći dio građevinske parcele ostaviti praznim. Uz pomoć dva konzolna volumena uspjeli su minimizirati tlocrt zgrade na samo 33 četvorna metra, inače zgrada ima 180 četvornih metara stambene površine. Zgrada djeluje kao da tek lagano dodiruje teren, a dvije konzole tvore natkriveni vanjski prostor – jedan na razini suterena koji se otvara prema prirodi, a drugi na razini ulice koji služi kao nadstrešnica nad parkingom. parcela i ulaz.
ČITAJ VIŠE: Slovački jumbo plakati koji će postati utočište za beskućnike

Privatnost prostorija zgrade povećava se s katovima; U suterenu se nalazi očeva kancelarija i dječja igraonica, prizemlje je predviđeno za stambene prostore, a kat za spavaće sobe. Konstruktivno je objekt projektiran u kombinaciji armiranog betona i drva. Osim brzine i jednostavnosti gradnje, odluci o izvedbi drvene konstrukcije kumovala je i želja za održivom gradnjom. Kao što znamo, Slovenija je izuzetno bogata drvom, a ujedno je boravak u drvenom objektu izuzetno ugodan. Sjeverna i južna fasada obložene su drvenom lamperijom i velikim prozorima otvorene prema prekrasnom krajoliku. S druge strane, zbog blizine susjednih zgrada, istočna i zapadna fasada su maksimalno zatvorene i prekrivene valovitim cementnim pločama, kojima je pokriven i krov.
Obavijest stranim medijima možete pronaći ovdje: archdaily.com, freshome.com






