La maison unifamiliale compacte de Škofja Loka a soulevé beaucoup de poussière sur Internet, car elle a été publiée sur de nombreux portails architecturaux mondiaux, tels que freshhome et archdaily.
La maison unifamiliale nouvellement construite à Škofja Loka, qui dispose d'une surface au sol de seulement 33 mètres carrés, a connu un grand succès sur Internet; il a été publié sur deux portails architecturaux mondiaux, freshhome et archdaily. Selon les architectes de 3 bureaux les clients sont venus vers eux avec un plan de maison type et ne voulaient déplacer que les fenêtres, et les architectes les ont alors charmés avec leur vision d'un bâtiment adapté aux besoins d'une jeune famille.

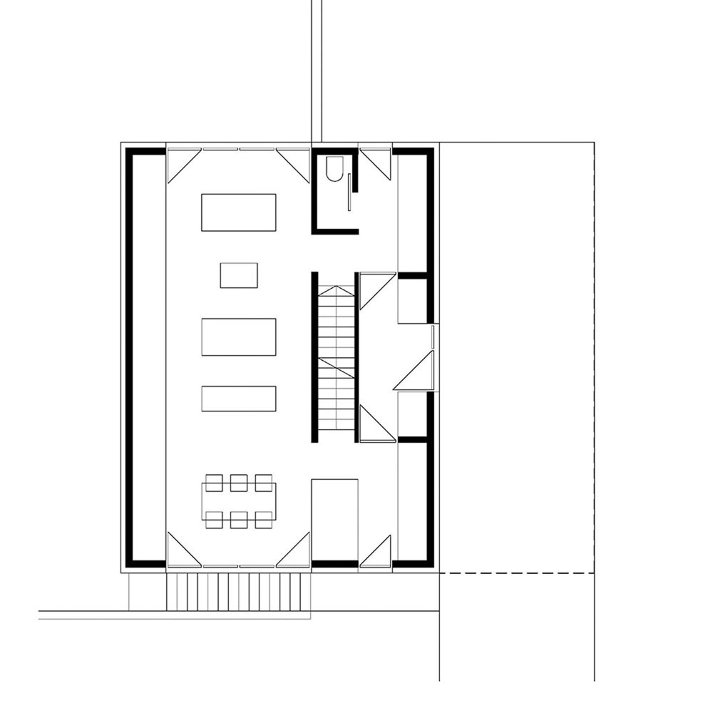
Les plus grandes limitations dans la conception du bâtiment étaient le terrain en pente et les bâtiments environnants denses. Les architectes ont voulu laisser le plus possible de terrain à bâtir vide. Avec l'aide de deux volumes en porte-à-faux, ils ont réussi à minimiser le plan d'étage du bâtiment à seulement 33 mètres carrés, sinon le bâtiment a 180 mètres carrés de surface habitable. Le bâtiment agit comme s'il ne touchait que légèrement le terrain, et les deux porte-à-faux créent un espace extérieur couvert - un au niveau du sous-sol, qui s'ouvre sur la nature, et un au niveau de la rue, qui sert d'auvent au-dessus du parking terrain et l'entrée.
EN SAVOIR PLUS: Des panneaux publicitaires slovaques qui deviendront un refuge pour les sans-abri

L'intimité des locaux de l'immeuble augmente avec les étages; le bureau du père et la salle de jeux des enfants sont situés au sous-sol, le rez-de-chaussée est destiné aux espaces de vie et le premier étage aux chambres. Structurellement, le bâtiment est conçu dans une combinaison de béton armé et de bois. Outre la rapidité et la facilité de construction, le choix de mettre en place une structure en bois s'est également appuyé sur la volonté d'une construction durable. On le sait, la Slovénie est extrêmement riche en bois, et en même temps séjourner dans un bâtiment en bois est extrêmement agréable. Les façades nord et sud sont habillées de boiseries et s'ouvrent sur le beau paysage par de larges baies vitrées. D'autre part, en raison de la proximité des bâtiments voisins, les façades est et ouest sont fermées au maximum et recouvertes de plaques de ciment ondulées, dont le toit est également recouvert.
L'annonce aux médias étrangers peut être trouvée ici: archdaily.com, Freshome.com






