Wyposażenie małego mieszkania zdecydowanie musi być szyte na miarę i spod twórczego pióra architekta przyzwyczajonego do kreatywności i innowacyjności. Na niewielkiej przestrzeni, jaką oferują małe mieszkania, przy odrobinie wyobraźni możemy stworzyć nowoczesną, a nawet niezwykle przestronną przestrzeń, w której można cieszyć się i komfortowo mieszkać. Przedstawiamy kilka przykładów, z których można zaczerpnąć inspirację do urządzenia małego mieszkania.
O „cudownych” adaptacjach małych mieszkań pisaliśmy już wielokrotnie w przeszłości, które swoją kreatywnością w urządzaniu wnętrz potrafią wskazać standardy i wskazać nam właściwe wytyczne oraz zainspirować nas inspiracją przy urządzaniu własnego mieszkania. Przyjrzyjmy się tym małym cudeńkom, którym dzięki pomocy mistrzów projektowania wnętrz i kreatywnych architektów nadano nowy, niezwykły wygląd.
Mieszkanie ma zaledwie 8 metrów kwadratowych
Miniaturowe mieszkanie, znajdujące się na siódmym piętrze starego paryskiego budynku, służyło niegdyś jako pokój służby, ale dziś zostało odnowione i zachwyca atrakcyjnym, nowoczesnym akcentem. Nowe funkcjonalne oblicze apartamentowi o powierzchni zaledwie ośmiu metrów kwadratowych nadało paryskie biuro architektoniczne Studio Kitoko.
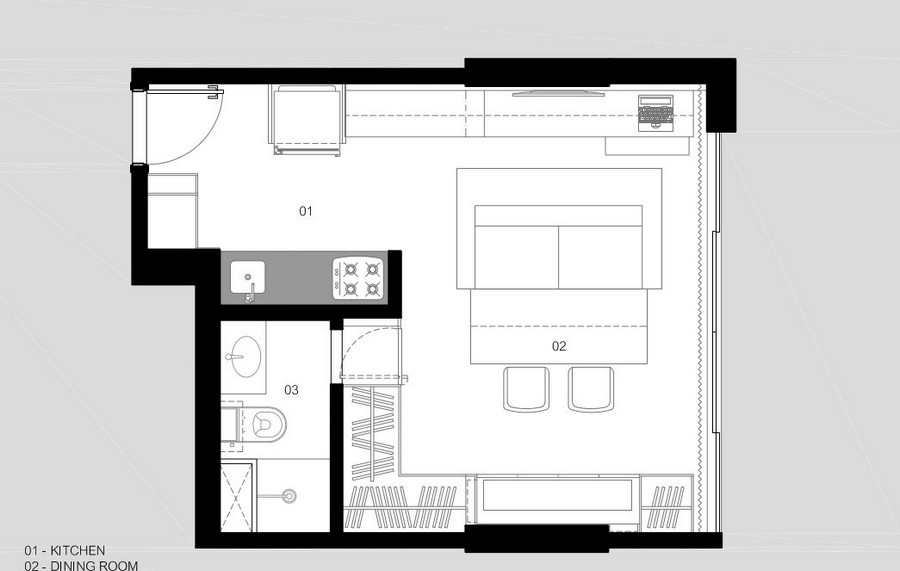
Mniejsza kawalerka o powierzchni zaledwie 30 metrów kwadratowych
W czasach, gdy każdy metr powierzchni jest wart fortunę, zakup mniejszego mieszkania lub kawalerki może być bardzo racjonalnym rozwiązaniem. Zobaczmy, jak idealnie przenieść małą kawalerkę o powierzchni zaledwie 30 metrów kwadratowych.
Remont na małym poziomie, zaledwie 40 metrów kwadratowych
O świetnie zaprojektowanym mikroapartamencie na Manhattanie nigdy by nie powiedziano, że ma powierzchnię zaledwie 40 metrów kwadratowych, bo na pierwszy rzut oka wydaje się znacznie większy, niż jest w rzeczywistości.
Kiedy mały sklep staje się przestrzenią życiową
Ponieważ małe, minimalistyczne mieszkanie, dawny sklep, w Turynie ma tylko dwa okna, architekci pomalowali ściany mieszkania na biało, zwiększając w ten sposób optycznie przestrzeń i jasność w pomieszczeniu. Przestrzeń charakteryzuje się białymi cegłami ściennymi i minimalistycznymi drewnianymi meblami. Ze względu na niewielką powierzchnię przestrzeń jest wyjątkowo dobrze wykorzystana.
Mały angielski dom z sypialnią na powietrzu
Najciekawszą rzeczą w mieszkaniu, które znajduje się w centrum Londynu, jest sypialnia na powietrzu, która znajduje się w połowie drogi na taras na szczycie dachu. Czy zauważyłeś także wannę w jadalni?
Mały dom na kółkach z dużą ilością miejsca
Tylko 20 metrów kwadratowych wystarczy na niezwykle kreatywny i innowacyjny dom na kółkach, który w niczym nie przypomina domu na kółkach. Ciekawa koncepcja autorstwa pary projektantów Andrew i Gabrielle Morrison.
Aby uzyskać jeszcze więcej inspiracji, przyjrzyj się niektórym rozwiązaniom do pomieszczeń o wyjątkowo małej powierzchni.





