Kompaktní rodinný dům ve Škofja Loka zvedl na internetu hodně prachu, protože byl publikován na mnoha světových architektonických portálech, jako je freshhome a archdaily.
Novozgrajena enodružinska hiša v Škofji Loki, ki se ponaša z zgolj 33 kvadratnih metrov veliko tlorisno površino, je na svetovnem spletu doživela velik uspeh; objavljena je bila namreč na dveh svetovnih arhitekturnih portalih freshhome in archdaily. Po besedah arhitektov iz 3Biroja so naročniki prišli k njim s tipskim načrtom hiše in želeli zgolj prestavitev oken, arhitekti pa so jih nato očarali s svojo vizijo zgradbe, prilagojene potrebam mlade družine.

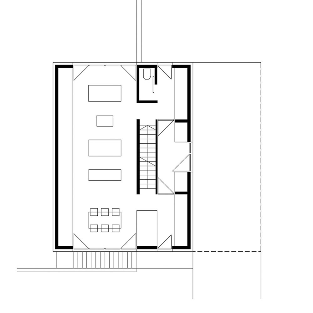
Največji omejitvi pri snovanju zgradbe sta bili nagnjen teren in gosta okoliška zazidava. Arhitekti so tako želeli čim večji del gradbene parcele pustiti prazen. S pomočjo dveh konzolnih volumnov so uspeli tloris stavbe minimalizirati na samo 33 kvadratnih metrov, sicer pa ima stavba 180 kvadratnih metrov bivalne površine. Zgradba deluje kot da se zgolj lahkotno dotika terena, konzoli pa ustvarjata pokriti zunanji površini – eno v kletnem nivoju, ki se odpira proti naravi ter eno na nivoju ulice, ki služi kot nadstrešek nad parkiriščem ter vhodom.
PŘEČTĚTE SI VÍCE: Slovenské billboardy, které se stanou útočištěm pro bezdomovce

Zasebnost prostorov stavbe se stopnjuje z nadstropji; v kleti se nahajata očetova pisarna in otroška igralnica, pritličje je namenjeno bivalnim prostorom, nadstropje pa spalnicam. Konstrukcijsko je zgradba zasnovana v kombinaciji armiranega betona in lesa. Odločitvi za izvedbo lesene konstrukcije je poleg hitrosti in enostavnosti gradnje botrovala tudi težnja po trajnostni gradnji. Kot vemo, je Slovenija izredno bogata z lesom, hkrati pa je bivanje v leseni zgradbi izredno prijetno. Severna in južna fasada sta odeti v lesen opaž in se z velikimi okni odpirata proti čudoviti pokrajini. Nasprotno pa sta vzhodna in zahodna fasada zaradi bližine sosednjih stavb kolikor je mogoče zaprti in prekriti z valovitimi cementnimi ploščami, s katerimi je prekrita tudi streha.
Objavo tujih medijih zasledite tukaj: archdaily.com, freshome.com






