Vad gör vi med en smal öppning mellan två byggnader? Låt oss fylla den med en otrolig arkitektonisk prestation!
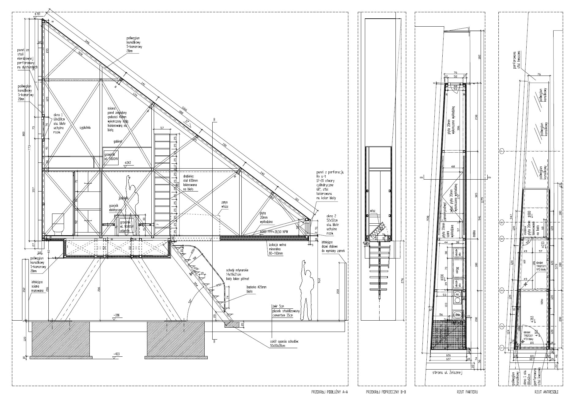
Keret House är ett projekt av den polska arkitekten Jakub Szczesny från Centrala studio, som genomfördes under beskydd av den polska stiftelsen för samtidskonst. Mer än en arkitektonisk bedrift är den extraordinära konstinstallationen placerad bland de historiskt värdefulla byggnaderna på Żelazna-gatan i Warszawa och mäter därmed flest tallar i bredd. 122 centimeter. Trots sitt trånga utseende på 14 m2 är interiören, upplyst av rikligt med naturligt ljus, långt ifrån klaustrofobisk. Med alla utrymmen som behövs för vardagslivet erbjuder den för närvarande ett tillfälligt hem för resande författare som den israeliske Etgar Kereoch samtidigt en vision om framtidens urbana hem.





