Das kompakte Einfamilienhaus in Škofja Loka hat im Internet viel Staub aufgewirbelt, da es auf vielen globalen Architekturportalen wie freshhome und archdaily veröffentlicht wurde.
Das neu gebaute Einfamilienhaus in Škofja Loka, das mit einer Grundfläche von nur 33 Quadratmetern auftrumpft, hat im Internet großen Erfolg erlebt; Es wurde auf zwei globalen Architekturportalen veröffentlicht, freshhome und archdaily. Nach Angaben der Architekten aus 3 Büros die bauherren kamen mit einem typischen hausplan zu ihnen und wollten nur die fenster versetzen, und die architekten verzauberten sie dann mit ihrer vision eines gebäudes, das an die bedürfnisse einer jungen familie angepasst ist.

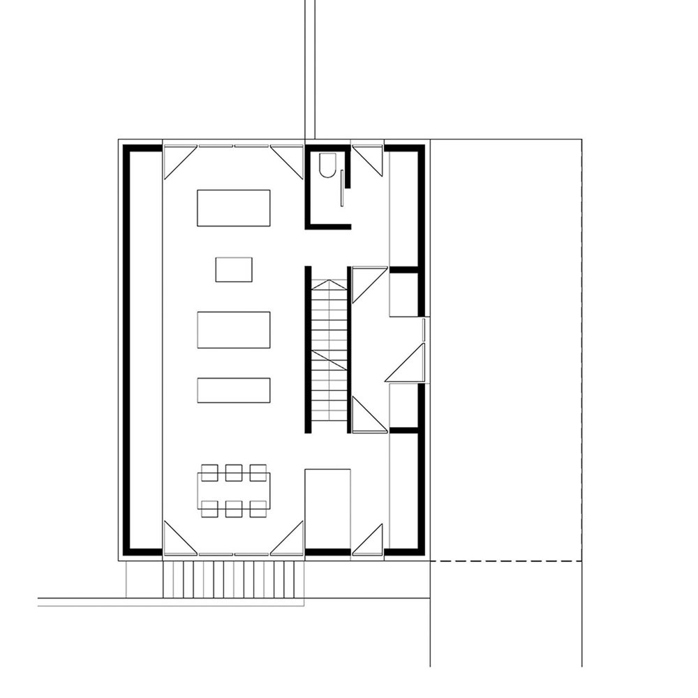
Die größten Einschränkungen bei der Gestaltung des Gebäudes waren das abschüssige Gelände und die dichte umgebende Bebauung. Die Architekten wollten möglichst viel des Baugrundstücks leer lassen. Mit Hilfe zweier auskragender Volumen gelang es ihnen, den Grundriss des Gebäudes auf nur 33 Quadratmeter zu minimieren, ansonsten verfügt das Gebäude über 180 Quadratmeter Wohnfläche. Das Gebäude wirkt so, als würde es das Gelände nur leicht berühren, und die beiden Auskragungen schaffen einen überdachten Außenbereich – einer im Untergeschoss, der sich zur Natur öffnet, und einer im Straßenniveau, der als Überdachung des Parkplatzes dient Los und der Eingang.
WEITERLESEN: Slowakische Werbetafeln, die zu einem Zufluchtsort für Obdachlose werden

Die Privatsphäre der Räumlichkeiten des Gebäudes nimmt mit den Stockwerken zu; im untergeschoss befinden sich das büro des vaters und das kinderspielzimmer, das erdgeschoss ist für wohnräume und das erste obergeschoss für schlafzimmer vorgesehen. Konstruktiv ist das Gebäude in einer Kombination aus Stahlbeton und Holz ausgeführt. Neben der Schnelligkeit und Leichtigkeit des Bauens wurde die Entscheidung für eine Holzkonstruktion auch durch den Wunsch nach nachhaltigem Bauen unterstützt. Wie wir wissen, ist Slowenien sehr reich an Holz, und gleichzeitig ist der Aufenthalt in einem Holzgebäude äußerst angenehm. Die Nord- und Südfassaden sind mit Holz verkleidet und öffnen sich mit großen Fenstern zur wunderschönen Landschaft. Andererseits sind aufgrund der Nähe zu den Nachbargebäuden die Ost- und Westfassade weitestgehend geschlossen und mit Wellzementplatten gedeckt, mit denen auch das Dach gedeckt ist.
Die Ankündigung an ausländische Medien finden Sie hier: archdaily.com, freshome.com






